Skip to content
ARCH x TECTURE – Architekt in Berlin
Deutsch
Contact
News & Infos
Profile
Services
Projects
ARCH x TECTURE
Close
Search for:
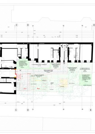
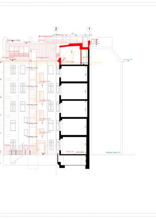
Roof CONVERSION
Elsenstraße 74
Attic conversion and addition of a lift system
LP 1-8
Basic evaluation, Preliminary planning
Draft planning, Approval planning
Execution
planning
Technical Design in Preparation for Project Tender
Technical Design & Tender Awarded
Construction supervision and documentation
Learn more about our work with rooftop conversions