Skip to content
ARCH x TECTURE – Architekt in Berlin
Deutsch
Contact
News & Infos
Profile
Services
Projects
ARCH x TECTURE
Close
Search for:
apartment refurbishment
Boxhagenerstraße 119
Apartment Renovation
LP 1-8
Basic evaluation
Preliminary planning
Design planning
Approval planning
Implementation planning
Preparation of the award of contract
Participation in awarding the contract
Site management
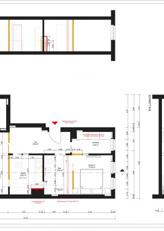
ground plan refurbishment Berlin
electrical plan refurbishment Berlin
detailed bathroom plan refurbishment Berlin
renovation construction Berlin Friedrichshain