ARCH
TECTURE
HOME EXTENSION AND RENOVATION
Voltastraße
Renovation of a single-family house
and extension through an annexe
Service phase 1-5
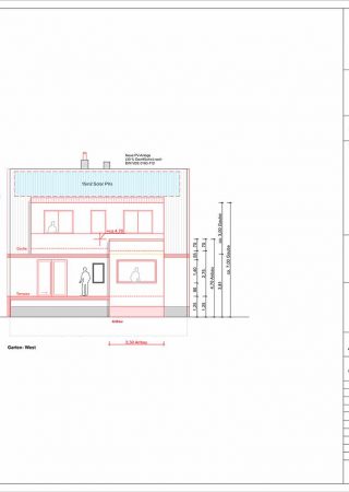
Renovation of an existing single-family house on Voltastraße, modernization of the interior spaces, energy efficiency upgrades, and expansion through a cleanly designed extension to create additional living area and improved spatial flow.
Renovation of a single-family house
and extension through an annexe
Service phase 1-5
Renovation of an existing single-family house on Voltastraße, modernization of the interior spaces, energy efficiency upgrades, and expansion through a cleanly designed extension to create additional living area and improved spatial flow.





