Skip to content
ARCH x TECTURE – Architekt in Berlin
Deutsch
Contact
News & Infos
Profile
Services
Projects
ARCH x TECTURE
Close
Search for:
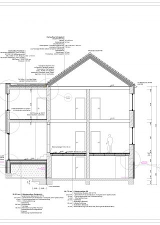
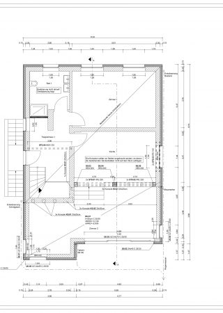
EXTENSION AND RENOVATION
Tiniusstrasse 28
Renovation of a single-family house
and extension through an annexe
LP 1-5
Basic evaluation
Preliminary planning
Draft planning
Approval planning
Implementation
planning